EX 74-208 Papendrecht, Molenvliet
F.J. van der Werf, 1969-1973, 1974-1976
architect F.J. van der Werf te Rotterdam
opdrachtgever Gemeentebestuur en Woningbouwvereniging Papendrecht
realisatie 1969 – 1973, 1974 – 1976
adres Stellingmolen, Onderslag, Papendrecht
programma 123 woningwetwoningen
Beschrijving van het plan
Papendrecht was door het Rijk aangewezen om de groei van de Randstad op te vangen. Samen met het ‘instituut Stad en Landschap’ werd in 1969 voor een nieuwe wijk een prijsvraag uitgeschreven, die werd gewonnen door architect ir. F. J. v.d. Werf. Hij stelde een structuur voor van kruisvormige bebouwing om binnenhoven, te ontwikkelen volgens de SAR-inspraakmethode. Aan dit idee-plan werd in 1973 het predicaat ‘experimenteel’ toegekend (EX 73-165). In de wijk Molenvliet werden ca 100 woningen in een dichtheid van 90 won/ha gebouwd
als proef. Vanuit het principe dat mensen weer meer zeggenschap
over hun woonomgeving moesten krijgen, binnen een industriële productiecontext, ontwikkelde de Stichting Architecten Research (SAR) vanaf 1965 onder leiding van prof. Habraken ontwerpmethodes gericht op proces en op een exibele woning. Deze laatste moest bestaan
uit een ‘drager’ waarbinnen met een ‘inbouwpakket’ een woning speci ek werd gemaakt. Dit project is het eerste in een reeks waar deze methodes zo ver in de praktijk zijn uitgetest.
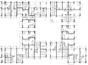
Het plan bestaat uit bouwstroken die als een geweven mat
4 woonhoven omsluiten. Door dambordsgewijs de hoven als toegangshof danwel tuinhof in te richten had elke woning een
voor- en achterzijde. Een verdiept aangelegde autostraat met een verkeersdrempel ter plaatse van de onderdoorgangen doorsnijdt de structuur. De bouwmassa’s bestaan uit 3 lagen plus een bewoonbare kap, met een galerijstraat op de tweede verdieping. De bouwlichamen vormen de drager. Op een maatraster van 180 cm waren betonnen schijven van 1,70 m als dragende elementen in één dominante
richting geplaatst. Met een beukmaat van 4,80 m ontstaan er in de dwarsrichting openingen van 3,10 m. Ook de kap heeft een dominante richting. Binnen deze structuur was een grote verscheidenheid van woningtypen gepland: begane grondwoningen in 1 of 2 lagen; waarvan 10 bejaarden- en 4 rolstoelwoningen en een 5-tal bedrijfsruimten; bovenwoningen in 1, 2 of 3 lagen, met aangrenzend dakterras boven lager gelegen woningen. De woningen werden in traditionelen materialen als baksteen, pannen en houten puien uitgevoerd. Alleen in één richting zijn betonnen elementen te zien van de drager.
Alle gepubliceerde tekeningen, ook die waarop de vergunningen zijn afgegeven, waren voorbeeldplannen, want toekomstige bewoners mochten meedenken over de indeling, de pui-invulling en de kleuren van het buitenschilderwerk. De architect hield in de periode van een half jaar 2 ‘spreekuren’ met elke bewoner waarin over deze zaken besloten werd.
Reden van predicering
Net als bij het gelijktijdig ingediende SAR-plan EX 73-162 in Gouda vond de commissie dat ze een project alleen op het resultaat kon beoordelen en niet het gevolgde proces. Belangrijk vond ze de
hoge dichtheid die werd bereikt met de continue bebouwing in twee richtingen met de speci eke buitenruimten ondanks de beperkte bouwhoogte. Ook de scheiding van verkeerstypen, waarbij rijverkeer ondergeschikt is aan de veiligheid van de voetgangers was van belang. De grote variatie van woningtypen en woninggrootte, binnen de eenvoudige basisconstructie volgens het dragerprincipe, vormde het tweede experimentele onderdeel. De gelijke richting van alle daken en de consequente toepassing van zolders werd als bruikbare toevoeging aan de woningen verwelkomd.
In de beoordeling voor de concrete locatie vond de commissie dat alle ideeën voldoende overeind waren gebleven in de uitwerking.



